ISTRIE, KRINGA – Pozemek + povolení
| č. ev | DN-38752 |
| Typ nabídky | Prodej |
| Kategorie | Stavební pozemky |
| Okresy | Istarska |
| Obec, část obce | Tinjan |
| Cena | 145 000 € |
| Cena za m2 | 147 €/m² |
| Plocha celkem | 982 m² |
| Zastavěná plocha a nádvoří (dvůr) | 943 m² |
| Celková zastavěná plocha | 943 m² |
| Vzdálenost od moře | 10 000 m |
| Elektřina |
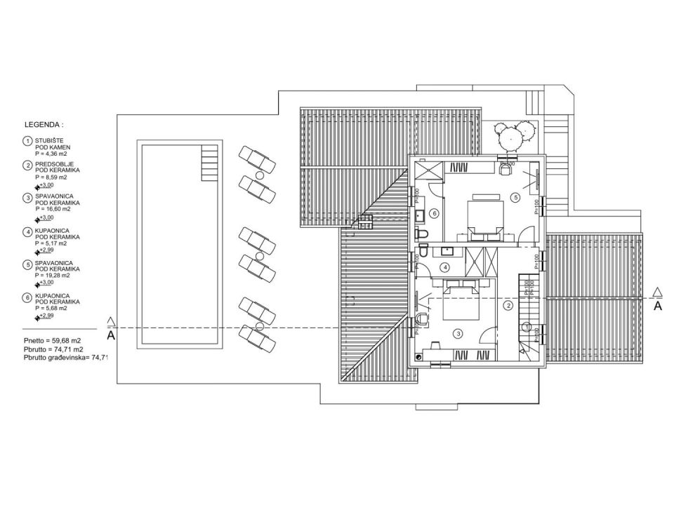
ISTRIE, KRINGA (okolí) – Stavební pozemek s pravomocným povolením pro luxusní rodinný dům s bazénem V klidné istrijské vesničce obklopené zelení nabízíme stavební pozemek o výměře 982 m² s platným stavebním povolením na stavbu luxusní rustikální vily, která kombinuje autentickou středomořskou atmosféru s moderním komfortem. Podle projektu bude mít budoucí budova celkem 216,68 m² čisté obytné plochy ve třech podlažích a 38 m² bazénu - ideální pro rodinný život nebo investici do turistických pronájmů. Půdorys domu nabízí: Suterén (23 m²) – technická místnost/sklad. Přízemí (134 m²) - krytý vstup a vstupní hala, ložnice s vlastní koupelnou, toaleta/prádelna, otevřený prostor obývacího pokoje s jídelnou a kuchyní, další ložnice s koupelnou a krytá terasa s venkovní kuchyní. První patro (59,68 m²) – dvě pohodlné ložnice, obě s vlastní koupelnou a výhledem do přírody. Projekt byl navržen s důrazem na energetickou náročnost a poloha pozemku umožňuje klidný život s blízkostí veškeré základní občanské vybavenosti - moře, obchody, školy a dopravní spojení. Přístup na pozemek je zajištěn a je v osobním vlastnictví. Tento pozemek s hotovou dokumentací a připraveným projektem umožňuje rychlé zahájení stavby, bez dalšího čekání. Perfektní příležitost pro ty, kteří si chtějí postavit svůj vysněný dům nebo investovat do luxusní nemovitosti ve speciální lokalitě na Istrii. Pro více informací a detaily projektu nás neváhejte kontaktovat.
U všech našich nabídek jsou ceny nemovitostí identické jako při koupi přímo u agentury/developera v Chorvatsku, a to díky tomu, že jsme oficiální zastoupení těchto kanceláří na Českém, Slovenském, Německém a Rakouském trhu. A to bez dodatečných navýšení za služby v českém jazyce (mimo překladů smluv ověřených notářem).
Vážení klienti, prohlídka nemovitostí, sdělení polohy a další podrobné informace je možné pouze s podepsanou smlouvou o zastoupení, která je základem pro další akce jako je nákup nemovitosti. Vše je dle Zákona o zprostředkování při koupi nemovitostí. Kupující platí zákonnou provizi za zastoupení ve výši 3 % (+ DPH) z dohodnuté ceny, a to pouze v případě koupě nemovitosti. V případě, že se koupě neuskuteční, smlouva Vás k ničemu nezavazuje, a ruší se. V případě vážného zájmu o nemovitost Vám smlouvu zašleme na požádání.
Odpovíme Vám do 24 hodin.
Nabízíme pouze prověřené reality.
Ručíme za kvalitní servis.
Pomůžeme zajistit ubytování při prohlídkách.