ISTRIE, KANFANAR – Investiční příležitost! Pozemky s povolením pro luxusní vily
| č. ev | DN-39169 |
| Typ nabídky | Prodej |
| Kategorie | Stavební pozemky |
| Okresy | Istarska |
| Obec, část obce | Kanfanar |
| Cena | 410 000 € |
| Cena za m2 | 140 €/m² |
| Plocha celkem | 2 928 m² |
| Zastavěná plocha a nádvoří (dvůr) | 943 m² |
| Celková zastavěná plocha | 943 m² |
| Vzdálenost od moře | 10 000 m |
| Elektřina |
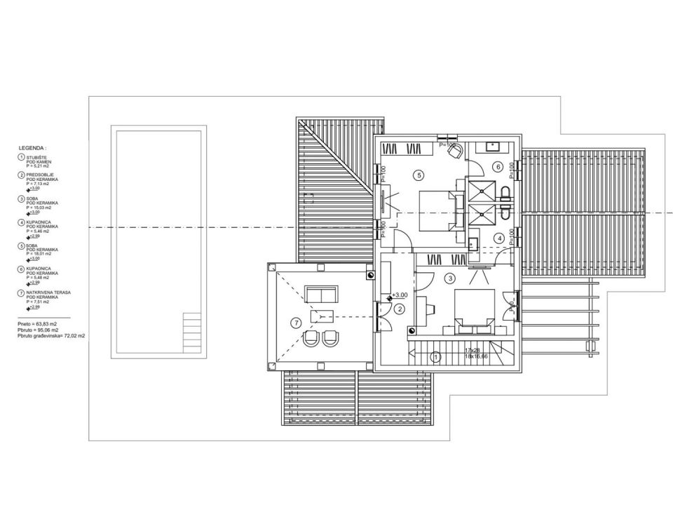
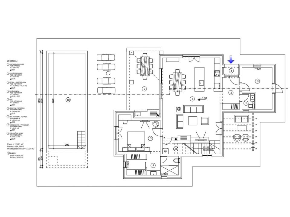
ISTRIE, KANFANAR – Stavební pozemek s pravomocným povolením pro luxusní rodinný dům s bazénem V klidné istrijské vesničce obklopené zelení nabízíme stavební pozemek s platným stavebním povolením pro výstavbu luxusního rodinného domu, který kombinuje autentickou středomořskou atmosféru s moderním komfortem. Podle projektu bude mít budoucí objekt 156,28 m² obytné plochy a další bazén o velikosti 38,00 m², ideální pro rodinný život nebo investici do turistických pronájmů. Půdorys domu nabízí: Přízemí s prostorným obývacím pokojem (51,69 m²), moderně řešenou kuchyní s jídelním koutem, vstupní chodbou, toaletou, komorou/prádlem, technickou místností a krytou terasou. První patro se třemi pohodlnými ložnicemi, dvěma koupelnami, vstupní halou a krytou terasou s výhledem do přírody. Projekt byl navržen s důrazem na energetickou náročnost a poloha pozemku umožňuje klidný život s blízkostí veškeré základní občanské vybavenosti - moře, obchody, školy a dopravní spojení. Tento pozemek s hotovou dokumentací a připraveným projektem umožňuje rychlé zahájení stavby, bez dalšího čekání. Perfektní příležitost pro ty, kteří si chtějí postavit svůj vysněný dům nebo investovat do luxusní nemovitosti ve vyhledávané lokalitě na Istrii. Pro více informací a detaily projektu nás neváhejte kontaktovat.
U všech našich nabídek jsou ceny nemovitostí identické jako při koupi přímo u agentury/developera v Chorvatsku, a to díky tomu, že jsme oficiální zastoupení těchto kanceláří na Českém, Slovenském, Německém a Rakouském trhu. A to bez dodatečných navýšení za služby v českém jazyce (mimo překladů smluv ověřených notářem).
Vážení klienti, prohlídka nemovitostí, sdělení polohy a další podrobné informace je možné pouze s podepsanou smlouvou o zastoupení, která je základem pro další akce jako je nákup nemovitosti. Vše je dle Zákona o zprostředkování při koupi nemovitostí. Kupující platí zákonnou provizi za zastoupení ve výši 3 % (+ DPH) z dohodnuté ceny, a to pouze v případě koupě nemovitosti. V případě, že se koupě neuskuteční, smlouva Vás k ničemu nezavazuje, a ruší se. V případě vážného zájmu o nemovitost Vám smlouvu zašleme na požádání.
Odpovíme Vám do 24 hodin.
Nabízíme pouze prověřené reality.
Ručíme za kvalitní servis.
Pomůžeme zajistit ubytování při prohlídkách.