ISTRIE, BUJE - Pozemek se započatou výstavbou a výhledem na moře
| č. ev | DN-47251 |
| Typ nabídky | Prodej |
| Kategorie | Stavební pozemky |
| Okresy | Istarska |
| Obec, část obce | Buje |
| Cena | 400 000 € |
| Cena za m2 | 259 €/m² |
| Plocha celkem | 1 543 m² |
| Vzdálenost od moře | 17 000 m |
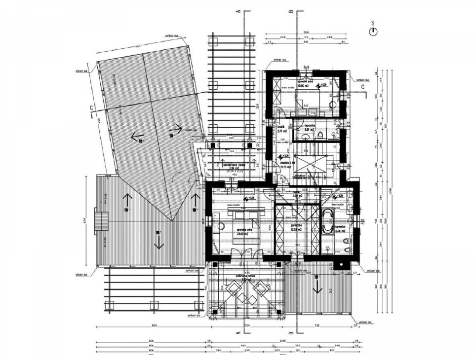
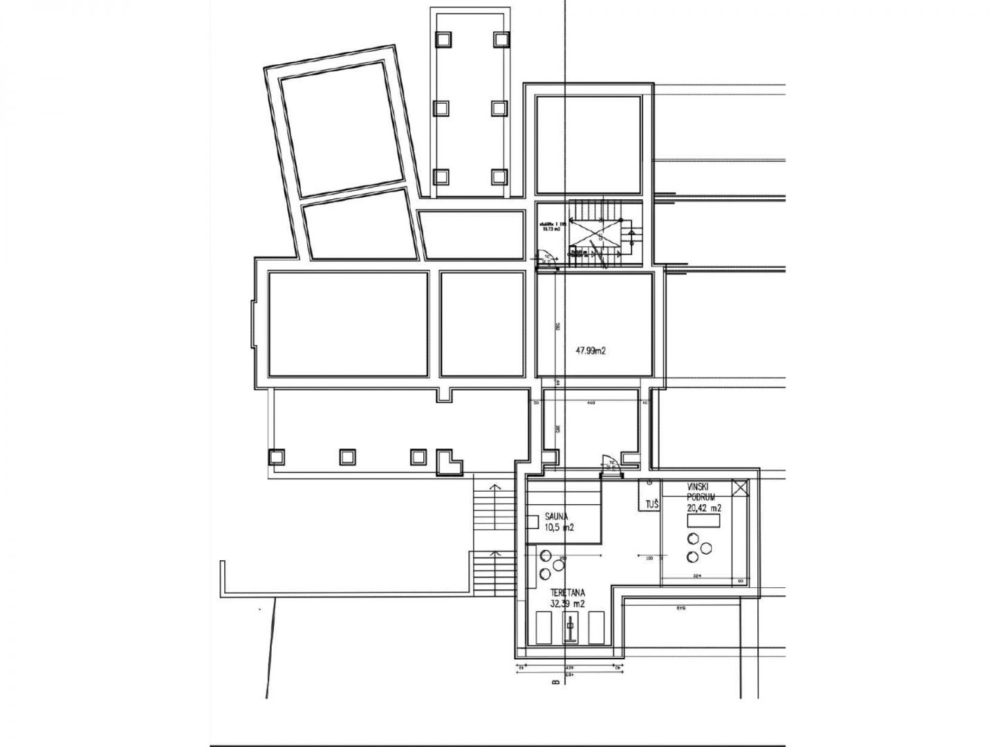
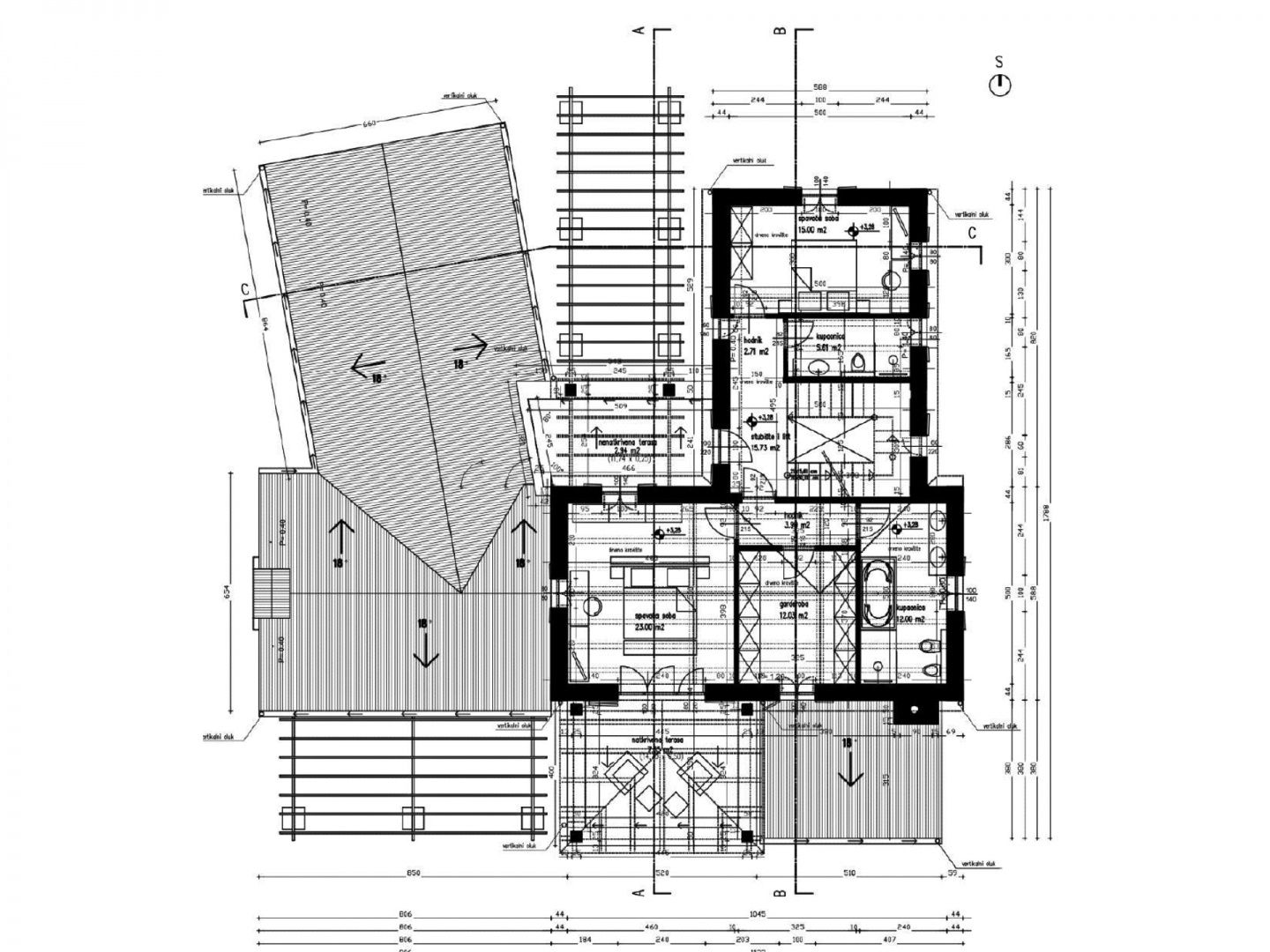
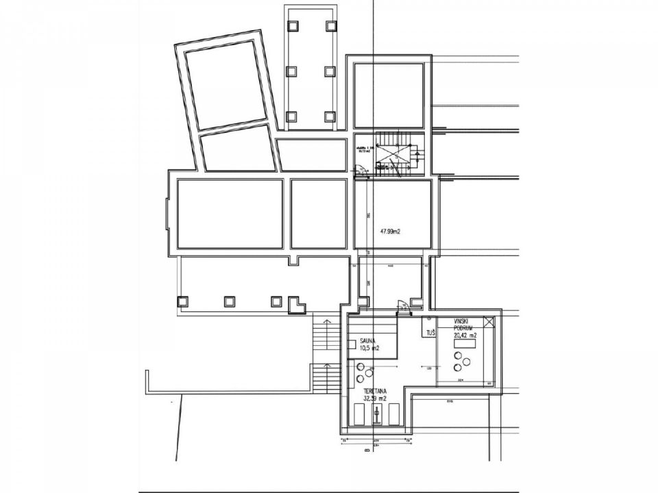
ISTRIE, BUJE - Pozemek s rozestavěným pozemkem a výhledem na moře Středověké město Buje se nachází v severozápadní části Istrijského poloostrova na vrcholu kopce, z něhož je krásný výhled na moře, okolní kopce, vinice a olivové háje, kterými je tato oblast proslulá. Blízkost moře, vliv středomořského a mírného kontinentálního klimatu, tradice v zemědělské výrobě, lovu a cestovním ruchu, kopcovitá krajina, zachovalá a neznečištěná příroda činí z oblasti města Buje jednu z nejatraktivnějších oblastí Istrijského poloostrova. Nedaleko Buje, v malém městečku všeobecně známém jako skutečný ráj pro gurmány a požitkáře, se prodává pozemek se stavebním povolením, rozestavěným pozemkem a výhledem na moře. Nachází se na okraji klidné osady na kopci, jehož poloha nabízí autentický zážitek malého istrijského městečka, intimitu a úlevu od veškerého hektického úsilí a hluku a zároveň blízkost dynamických istrijských měst s řadou služeb. Katastrální pozemek má relativně pravidelný obdélníkový tvar, terén je mírně svažitý a čistý a v blízkosti pozemku se nachází elektřina, voda a elektronická komunikační infrastruktura. Pozemek má platné stavební povolení na výstavbu bytového domu, který svým vzhledem a stylem zapadá do stávajícího prostředí, krajiny a bazénu. Je navržen jako komfortní samostatně stojící dům s jednou bytovou jednotkou, která se rozkládá na třech podlažích; suterén, přízemí a první patro. Stavba je nahlášena a zahájena; skořepina bazénu je postavena a provedeny přípravy na betonování základů. Vzhledem ke své mikrolokaci na okraji sídliště a okraji stavební zóny s panoramatickým výhledem na sametové kopce, údolí řeky Mirny a moře, konfiguraci, úhlednému vlastnictví a dokumentaci nabízí tento pozemek výjimečnou příležitost pro výstavbu rodinného domu nebo rekreačního domu.
U všech našich nabídek jsou ceny nemovitostí identické jako při koupi přímo u agentury/developera v Chorvatsku, a to díky tomu, že jsme oficiální zastoupení těchto kanceláří na Českém, Slovenském, Německém a Rakouském trhu. A to bez dodatečných navýšení za služby v českém jazyce (mimo překladů smluv ověřených notářem).
Vážení klienti, prohlídka nemovitostí, sdělení polohy a další podrobné informace je možné pouze s podepsanou smlouvou o zastoupení, která je základem pro další akce jako je nákup nemovitosti. Vše je dle Zákona o zprostředkování při koupi nemovitostí. Kupující platí zákonnou provizi za zastoupení ve výši 3 % (+ DPH) z dohodnuté ceny, a to pouze v případě koupě nemovitosti. V případě, že se koupě neuskuteční, smlouva Vás k ničemu nezavazuje, a ruší se. V případě vážného zájmu o nemovitost Vám smlouvu zašleme na požádání.
Odpovíme Vám do 24 hodin.
Nabízíme pouze prověřené reality.
Ručíme za kvalitní servis.
Pomůžeme zajistit ubytování při prohlídkách.