ISTRIA, SVETVINČENAT – Building Plot with Building Permit in an Idyllic Location
| č. ev | DN-28512 |
| Typ nabídky | Prodej |
| Kategorie | Stavební pozemky |
| Okresy | Istarska |
| Obec, část obce | Svetvinčenat |
| Cena | 90 000 € |
| Cena za m2 | 183 €/m² |
| Plocha celkem | 490 m² |
| Vzdálenost od moře | 15 000 m |
| Elektřina |
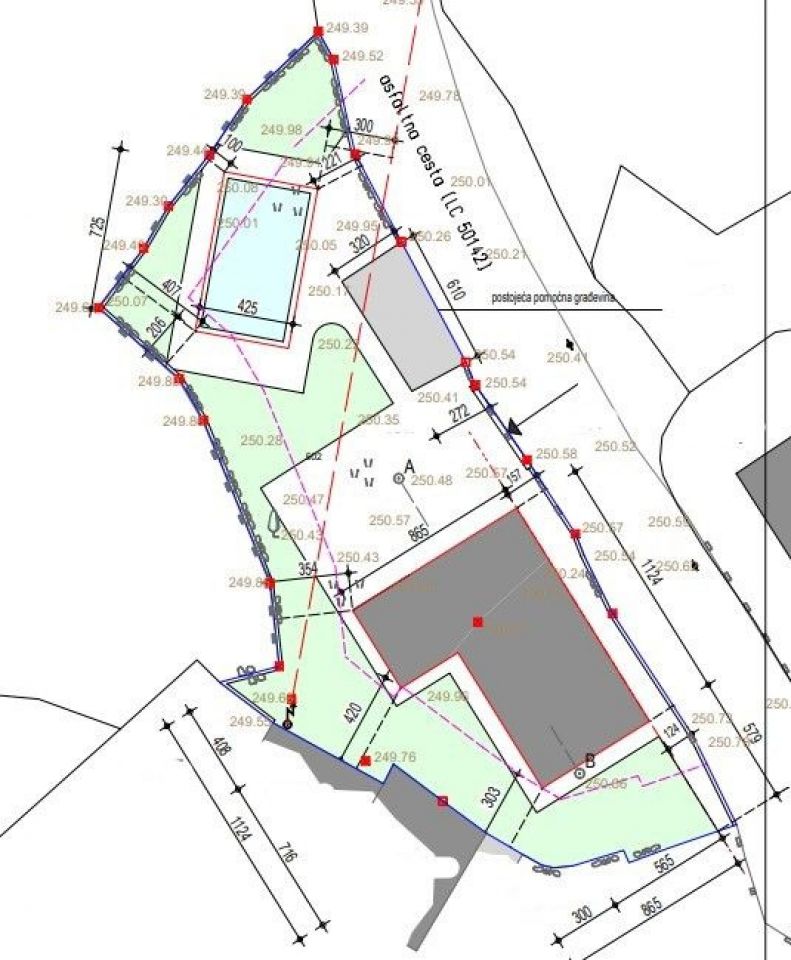
ISTRIE, SVETVINČENAT - Stavební pozemek s projektem na idylickém místě Renesanční město Svetvinčenat je jedním z klenotů Istrie s bohatou turistickou nabídkou a řadou akcí pořádaných v atraktivních prostorách tohoto města. Svetvinčentu zdobí renesanční náměstí se zámkem, který je symbolem samotného místa. Toto zvláštní město s bohatou tradicí se zajímavými a rozmanitými programy, z nichž nejvýznamnější jsou Středověký festival, Sýrový festival a Festival tance a neverbálního divadla, přitahuje každoročně četné návštěvníky. Prodej stavebního pozemku 490 m2. Byly získány všechny souhlasy s výstavbou vily s bazénem. Žádost o stavební povolení byla podána. Dále byly řešeny geodetické studie. Vila se bude skládat z přízemí a horního patra, dále z prostoru na opalování a bazénu 4x7 m2. U bazénu bude terasa a domek s krbem pro venkovní bydlení. Vila bude mít tři ložnice, dvě koupelny, velký obývací pokoj s kuchyní a jídelnou. V blízkosti je voda a elektřina, přístup je z asfaltové komunikace. Byla uhrazena polovina částky za přípojku elektřiny. Na hřišti byl vybudován velký septik, kolem pozemku plotové zdi. V ceně je vybudování septiku a část oplocení kolem pozemku. S postupem prací bude cena upravena. V současné době je na pozemku mobilní dům 3x8 m2, plně vybavený a napojený na neseptikovou nádrž, kterou lze dokoupit za příplatek. Možnosti koupě: 1. Pozemek s předloženým stavebním povolením, postavený užitkový dům s krbem s dokončeným truhlářstvím a WC, plotové zdi, septik. Polovina přípojky elektřiny zaplacena. Cena je 110 000 eur. 2. Pozemek s postaveným domem ve fázi roh-bau, tedy domem umístěným pod střechou, zvenku omítnutým, venkovní tesařství a vyhloubený bazén, funkční septik, venkovní dům s krbem a plotovými zdmi. Cena je 250 000 eur. 3. Je zde také možnost koupě dokončeného domu, kdy se kupující účastní několika platebních fází až do dokončení stavby na klíč. Cena je 350 000 eur. Cca 100 metrů je další menší stavební pozemek 330 m2 u zpevněné cesty, který je možné přikoupit k tomuto pozemku. V současné době jsou ve výstavbě plotové zdi a septik. Vodnjan a Svetvinčenat jsou 10 km daleko, Fažana 14 km a Pula 19 km. Pěkný pozemek pro stavbu rekreačního domu nebo rodinného domu.
U všech našich nabídek jsou ceny nemovitostí identické jako při koupi přímo u agentury/developera v Chorvatsku, a to díky tomu, že jsme oficiální zastoupení těchto kanceláří na Českém, Slovenském, Německém a Rakouském trhu. A to bez dodatečných navýšení za služby v českém jazyce (mimo překladů smluv ověřených notářem).
Vážení klienti, prohlídka nemovitostí, sdělení polohy a další podrobné informace je možné pouze s podepsanou smlouvou o zastoupení, která je základem pro další akce jako je nákup nemovitosti. Vše je dle Zákona o zprostředkování při koupi nemovitostí. Kupující platí zákonnou provizi za zastoupení ve výši 3 % (+ DPH) z dohodnuté ceny, a to pouze v případě koupě nemovitosti. V případě, že se koupě neuskuteční, smlouva Vás k ničemu nezavazuje, a ruší se. V případě vážného zájmu o nemovitost Vám smlouvu zašleme na požádání.
Odpovíme Vám do 24 hodin.
Nabízíme pouze prověřené reality.
Ručíme za kvalitní servis.
Pomůžeme zajistit ubytování při prohlídkách.