IČIĆI, POLJANE - pozemek o rozloze 1960 m2 se 2 zahájenými stavbami s panoramatickým výhledem na moře pro rodinný dům/vilu/apartmány/dům k pronájmu - dovolená s bazénem
| č. ev | DN-46173 |
| Typ nabídky | Prodej |
| Kategorie | Stavební pozemky |
| Okresy | Primorsko-goranska |
| Obec, část obce | Opatija - Okolica |
| Cena | 1 550 000 € |
| Cena za m2 | 790 €/m² |
| Plocha celkem | 1 960 m² |
| Vzdálenost od moře | 1 200 m |
| Elektřina | |
| Voda |
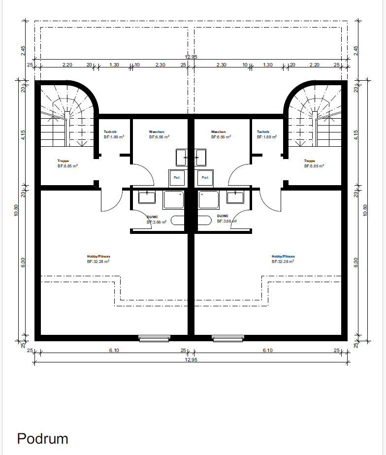
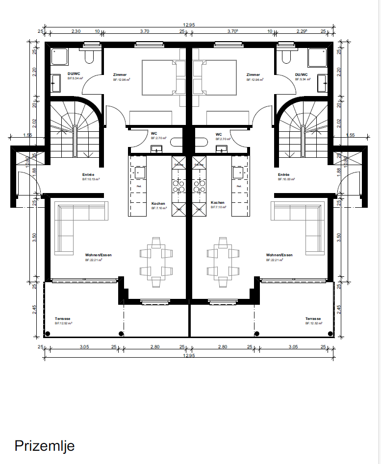
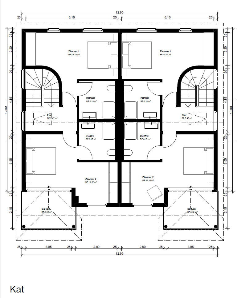
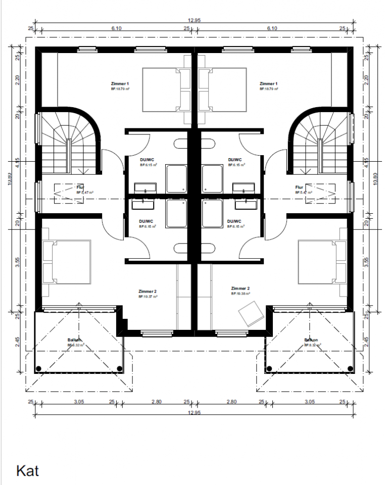
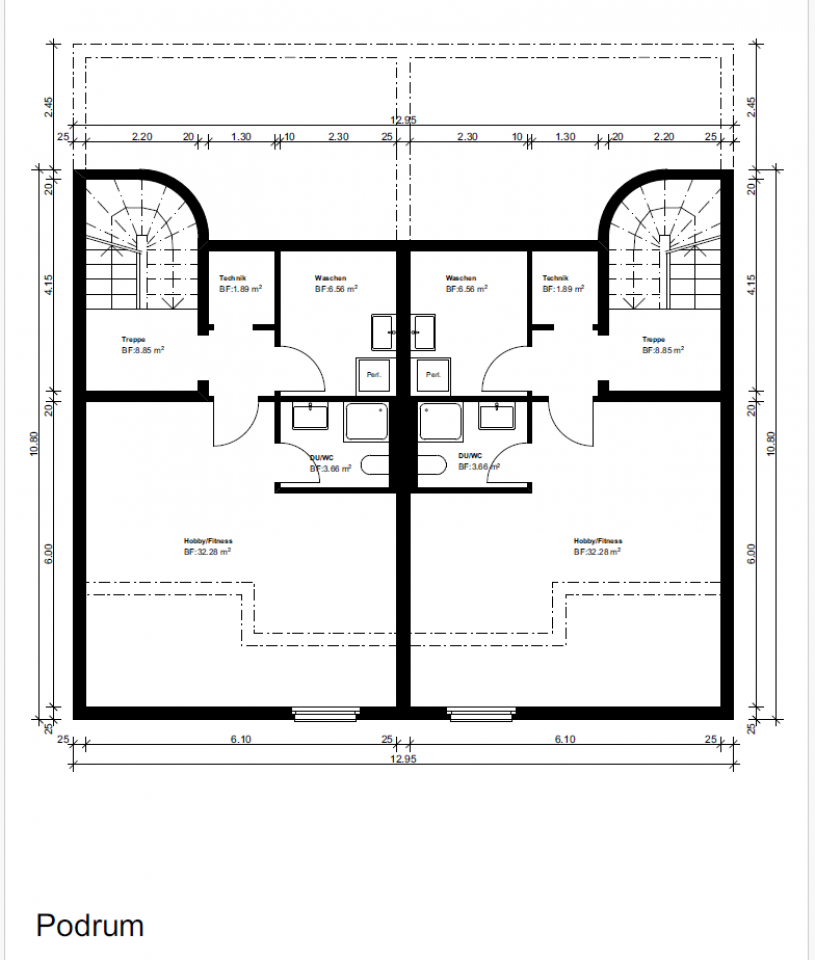
IČIĆI, POLJANE - pozemek o rozloze 1960 m2 se 2 zahájenými stavbami s panoramatickým výhledem na moře pro rodinný dům/vilu/apartmány/dům k pronájmu - rekreační objekt s bazénem Stavební pozemek je vzdálen 1,2 km vzdušnou čarou od moře, má otevřený panoramatický výhled na moře a je orientován na jih. Na pozemku jsou 2 stavební povolení pro 2 budovy: - jedna o rozloze 450 m2 (BRP) + bazén - všechny příspěvky na energie, vodu, elektřinu, telefon zaplaceny. - suterén a deska pro přízemí jsou provedeny, stavba domu může ihned pokračovat! - druhá o rozloze 450 m2 (BRP) + bazén - také všechny příspěvky na energie, vodu, elektřinu, telefon zaplaceny. Tento dům se ve skutečnosti skládá ze dvou dvojdomků (nebo dvou třípatrových bytů), každý se SUTERÉNEM + VYSOKÝM PŘÍZEMÍ + 1. PATRO + PODKROVÍM propojeným vnitřním schodištěm: SUTERÉN: Skládá se z kotelny, velké koupelny, prádelny a jedné velké místnosti, kterou lze zařídit jako wellness, posilovnu, dětskou hernu a podobně. VYSOKÉ PŘÍZEMÍ: Skládá se ze vstupní haly, obývacího pokoje, jídelny, kuchyně, toalety pro hosty, ložnice, šatny, koupelny a kryté terasy. 1. PATRO: Skládá se z chodby, dvou ložnic, dvou koupelen, šatny a kryté terasy. PODKROVÍ: Skládá se z jedné velké místnosti, kterou lze zařídit dle přání budoucího majitele. Tento dům se prodává ve vysokém stupni výstavby (roch bau): - všechna okna (elektrické žaluzie) a vchodové dveře nainstalovány - dokončená fasáda - 10 cm - podlahové vytápění - veškeré instalace dokončeny, venkovní jednotka a ohřívač vody nainstalovány - stěny jsou kompletně vyrovnané (vyrovnávací hmota) - stačí vybrat požadovanou barvu a natřít - veškeré potřebné elektrické, vodovodní a kanalizační instalace v podlahách a stěnách nainstalovány (podlahové vytápění, klimatizace, voda a kanalizace, kuchyňské a sociální zařízení, elektrické zásuvky atd.) - všechny podlahy, vnější i vnitřní podklady a hydroizolace provedeny, stačí vybrat finální keramické obklady a parkety a položit je Pozemek se nachází v klidné a mírové poloze a hned u silnice. Všechny inženýrské sítě k pozemku. Čistý a uklizený pozemek. Budoucí výstavba nemovitostí na tomto pozemku by měla panoramatický otevřený výhled na moře, celý Kvarnerský záliv a ostrovy i z přízemí! Tato nemovitost je vzdálena vzdušnou čarou 1,2 km od moře, nebo 3,4 km autem (cca 7 min). Dobrá příležitost pro investory, kteří se zabývají výstavbou apartmánů/domů k pronájmu - dovolená s bazénem, ale také pro ty, kteří by si chtěli postavit rodinný dům v klidném a tichém prostředí. NEMOCNOST VE VÝBORNÉ A JEDINEČNÉ LOKALITE S VELKÝM POTENCIÁLEM!!! IČIĆI: Ičići je malé turistické město s cca 800 obyvateli, které se nachází na severním Jadranu, v Kvarnerském zálivu. Město je vzdálené 5 km od Opatije a 15 km od Rijeky. Nachází se na úpatí 1401 m vysoké hory Učka a jeho okolí bylo pro svou jedinečnost a přírodní krásy prohlášeno za přírodní park. Obyvatelstvo se zabývá převážně cestovním ruchem a pohostinstvím. Díky své výhodné poloze se Ičići v průběhu let vyvinuly ve skutečnou turistickou destinaci s četnými nabídkami, takže kromě bohaté stravovací nabídky nabízí i možnost provozování různých sportů, výletů a nočního života. Z Ičići je krásný výhled na dva největší chorvatské ostrovy Krk a Cres, které lze navštívit i lodí. Toto místo je obzvláště známé svou výborně vybavenou ACI Marinou. Díky rozmanitému ubytování (hotely, apartmány, autokemp) a sportovním a rekreačním zařízením (tenisové kurty, vodní sporty, plachtění...) si zde našla své místo pro rozvoj námořní turistika. Cestou z Ičići na Učku narazíte na malé středověké městečko Veprinac, které má svůj vlastní zákon a jehož historie sahá až do roku 1500. Nedaleko se nachází autokemp Ičići, který se nachází v blízkosti pláže, nedaleko tenisových kurtů. Hlavní turistickou atrakcí Ičići je jistě pláž. Nachází se v samém centru města a skládá se z betonové a písčité části. Každý rok se investuje do zlepšení pláže, a proto pláž rok co rok získává modrou vlajku. Vstup je zdarma a přístupný pro všechny. Pláž je z jedné strany ohraničena ACI Marinou, zatímco z druhé strany se nachází malý přístav, který existuje již od města Ičići a rozvíjel se souběžně s městem. Tento přístav přijímá menší lodě a připomíná nám, že Ičići jsou přímořské město. Za zmínku stojí zejména to, že Ičići prochází slavná Lungomare, pobřežní promenáda, kterou v roce 1885 vybudoval rakouský císař František Josef I. Tato krásně upravená pobřežní promenáda je dlouhá 12 km a táhne se od Voloska po Lovran a Ičići jsou téměř v polovině cesty. V noci je decentně osvětlena, což vytváří podmínky pro romantické procházky. Město Ičići je s ostatními městy spojeno meziměstskými a městskými autobusy. V přímořských městech jsou obzvláště známé tzv. „Rybářské slavnosti“, které se pořádají v letních měsících. Ičići má také své vlastní festivaly, o kterých jsou místní obyvatelé i turisté informováni několik dní předem prostřednictvím četných plakátů. OPATIJA: Opatija, krásné přímořské město ležící na pobřeží Jaderského moře, je známou turistickou destinací pro turisty z celého světa. Město je obklopeno krásnou přírodou, na úpatí hory Učka. Nemovitosti v Opatiji nabízejí neocenitelný výhled na moře a okolní ostrovy Krk a Cres. Opatija je obklopena okouzlujícími městečky se starými domy zasazenými do úzkých uliček bohatých na historii. Ulice města Opatije jsou tvořeny nemovitostmi, které vynikají svou specifickou architekturou a vilami, které pocházejí z habsburského období. Velký výběr pláží, křišťálově čisté moře a rozmanité turistické služby jsou klíčovými faktory, které dělají z Opatije perfektní turistickou destinaci, kterou sousední země uznávají jako vynikající investiční volbu. Ceny nemovitostí v této oblasti rostou, obsazenost pronájmů je vynikající, což způsobilo návratnost investic 5 % až 10 % a přilákalo zahraniční investory. Vážení potenciální kupující, nájemníci a pronajímatelé, prohlídka nemovitosti, která vás zajímá a o kterou máte zájem, je možná pouze a výhradně s podpisem Smlouvy o realitním zprostředkování, a to z důvodu ochrany vlastníka nemovitosti před návštěvami neregistrovaných osob, a v souladu se zákonem o ochraně osobních údajů a zákonem o realitním zprostředkování. Při prohlídce každé nemovitosti je potenciální kupující/nájemce/nájemce povinen vyplnit a podepsat Smlouvu o realitním zprostředkování, která uvádí následující: - základní informace o potenciálním kupujícím/nájemci/nájemci - základní informace o realitní kanceláři - výše provize realitní kanceláře Provize realitní kanceláře pro kupujícího činí 3 % (+25 % DPH) z celkové sjednané kupní ceny. Provize realitní kanceláře pro nájemce činí jedno měsíční nájemné (+25 % DPH).
U všech našich nabídek jsou ceny nemovitostí identické jako při koupi přímo u agentury/developera v Chorvatsku, a to díky tomu, že jsme oficiální zastoupení těchto kanceláří na Českém, Slovenském, Německém a Rakouském trhu. A to bez dodatečných navýšení za služby v českém jazyce (mimo překladů smluv ověřených notářem).
Vážení klienti, prohlídka nemovitostí, sdělení polohy a další podrobné informace je možné pouze s podepsanou smlouvou o zastoupení, která je základem pro další akce jako je nákup nemovitosti. Vše je dle Zákona o zprostředkování při koupi nemovitostí. Kupující platí zákonnou provizi za zastoupení ve výši 3 % (+ DPH) z dohodnuté ceny, a to pouze v případě koupě nemovitosti. V případě, že se koupě neuskuteční, smlouva Vás k ničemu nezavazuje, a ruší se. V případě vážného zájmu o nemovitost Vám smlouvu zašleme na požádání.
Odpovíme Vám do 24 hodin.
Nabízíme pouze prověřené reality.
Ručíme za kvalitní servis.
Pomůžeme zajistit ubytování při prohlídkách.